Шахтний котел Termico КДГ 12 кВт
Шахтний котел тривалого горіння Termico КДГ 12 кВт: особливості
Termico КДГ 12 – опалювальний котел нижнього горіння (котел Холмова) з об'ємною камерою згоряння. Призначений для обігріву приміщень різного призначення площею 120 м2.
Котел працює на дровах та дров'яних відходах, брикетах, торфі, вугіллі та іншому виді твердого палива.
Завдяки вдалій конструкції котел може працювати на одній закладці дров 18-30 годин залежно від якості палива та зовнішніх умов.
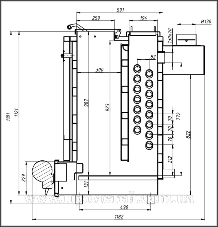
Котел виготовлений із жароміцної сталі завтовшки 5 мм. Між корпусом та декоративною обшивкою прокладено шар теплоізоляції товщиною 50 мм.
Конструкцією передбачені троє дверцят – завантажувальні, для очищення теплообмінника та зольника. Двоє з них розташовані зверху та одна – у нижній частині котла.
Теплообмінник трубчастий, має два ряди суцільнотягнутих жароміцних труб. У нижній частині розташоване футерування з корундового термобетону для зниження термічного навантаження на метал і продовження всього терміну служби котла.
Колосники чавунні, витримують високі температури і легко змінюються.
Вихід димоходу круглий може бути підключений до димоходу як горизонтально, так і вертикально, що спрощує монтаж котла в існуючій системі опалення.
Управління котлом здійснюється за допомогою механічного терморегулятора або повноцінної автоматики (контролера та вентилятора наддуву). Автоматика значно підвищує ефективність роботи котла та скорочує витрати палива на 20-25%.
Габарити та внутрішня будова котла на твердому паливі Терміко КДГ 12
Переваги шахтного котла Termico КДГ 12
- Жаростійка сталь 5 мм;
- Теплоізоляція корпусу;
- Розвинений теплообмінник;
- Універсальний димохід;
- Футерування зони горіння;
- Терморегулятор у комплекті;
- Гарантія – 36 місяців.
Комплектація котла
- Котел в зборі.
- Ланцюжковий регулятор тяги.
- Блок керування + вентилятор (опція).
- Паспорт та гарантійний талон.
Поширені запитання
-
Які переваги шахтних котлів в порівнянні зі звичайними котлами на дровах?
-
Як розрахувати потужність шахтного котла для мого будинку?
-
Яке паливо підходить для шахтних котлів?
-
Чи потрібна автоматика для шахтного котла?
-
Чи обов'язкова буферна ємність (теплоакумулятор) для шахтного котла?
Характеристики
Відгуків про цей товар ще не було.
Немає відгуків про цей товар, станьте першим, залиште свій відгук.
Немає питань про даний товар, станьте першим і задайте своє питання.
