Шахтный котел Termico КДГ 25 кВт
Шахтный котел длительного горения Termico КДГ 25 кВт: особенности
Termico КДГ 25 – отопительный котел нижнего горения (котел Холмова) с объемной камерой сгорания. Предназначен для обогрева помещений различного назначения площадью до 250 м2.
Котел работает на дровах и дровяных отходах, брикетах, торфе, угле и другом виде твердого топлива.
Благодаря удачной конструкции котел может работать на одной закладке дров 18-30 часов в зависимости от качества топлива и внешних условий.
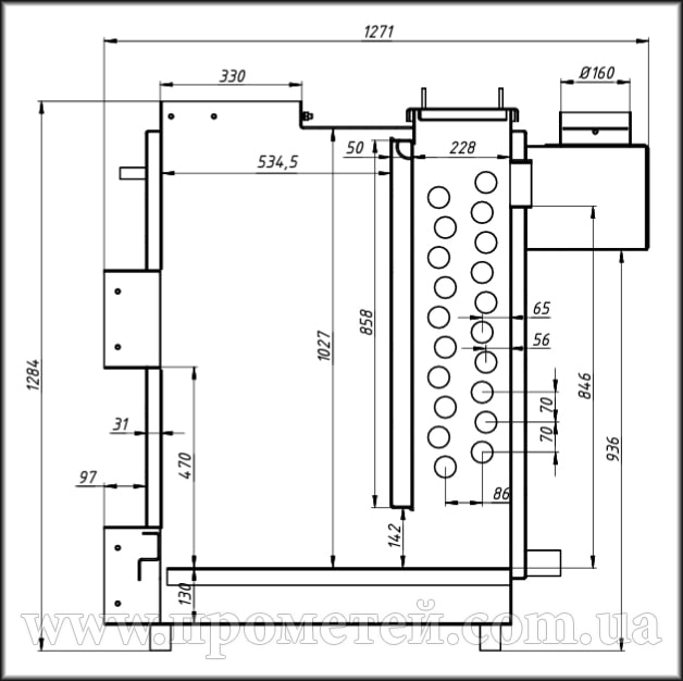
Котла изготовлен из жаропрочной стали толщиной 5 мм. Между корпусом и декоративной обшивкой проложен слой теплоизоляции толщиной 50 мм.
Конструкцией предусмотрены три дверцы – загрузочная, для очистки теплообменника и зольника. Две из них расположены сверху и одна – в нижней части котла. Начиная с 25 кВт в котле присутствует дополнительная дверка во фронтальной части котла. Она упрощает загрузку топлива в нижние ярусы камеры сгорания.
Теплообменник трубчатый, имеет два ряда цельнотянутых жаропрочных труб. В нижней части расположена футеровка из корундового термобетона для снижения термической нагрузки на металл и продления всего срока службы котла.
Колосники чугунные, выдерживают высокие температуры и легко сменяемые.
Выход дымохода круглый, может быть подключен к дымоходу как горизонтально, так и вертикально, что упрощает монтаж котла в существующей системе отопления.
Управление котлом осуществляется с помощью механического терморегулятора, либо полноценной автоматики (контроллера и вентилятора наддува). Автоматика значительно повышает эффективность работы котла и сокращает расход топлива на 20-25%.
Габариты и внутреннее строение котла на твердом топливе Термико КДГ 25
Преимущества шахтного котла Termico КДГ 25
- Жаропрочная сталь 5 мм;
- Теплоизоляция корпуса;
- Развитый теплообменник;
- Универсальный дымоход;
- Футеровка зоны горения;
- Терморегулятор в комплекте;
- Гарантия – 36 месяцев.
Комплектация котла
- Котел в сборе.
- Цепочный регулятор тяги.
- Блок управления + вентилятор (опция).
- Паспорт и гарантийный талон.
Частые вопросы
-
Какие преимущества шахтных котлов по сравнению с обычными котлами на дровах?
-
Как рассчитать мощность шахтного котла для моего дома?
-
Какое топливо подходит для шахтных котлов?
-
Нужна ли автоматика для шахтного котла?
-
Обязательна ли буферная емкость (теплоаккумулятор) для шахтного котла?
Характеристики
Нет отзывов о данном товаре.
Нет отзывов о данном товаре, станьте первым, оставьте свой отзыв.
Нет вопросов о данном товаре, станьте первым и задайте свой вопрос.
